Print This Page
For the perfect home...just add water.
Shoreditch, N1

£921 Pw / £4,000 Pcm (Tenant Info)

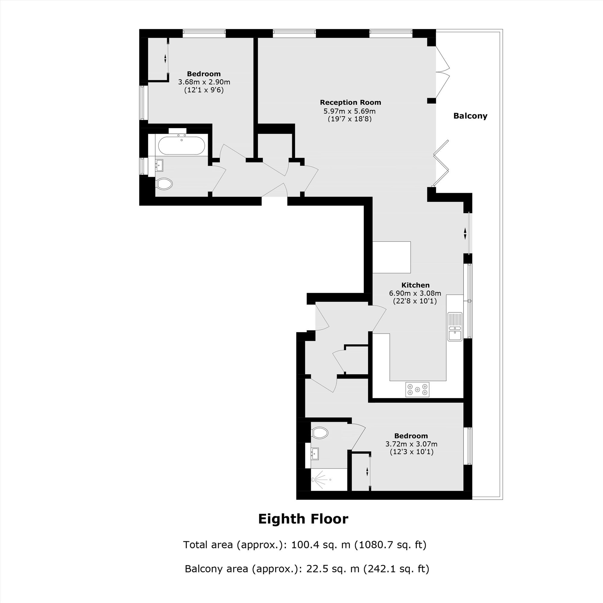
  • 2 Bedrooms
  • 2 Bathrooms
  • 1 Reception
    Features
  • Not Specified
  • 1000sq ft
  • Modern
  • Penthouse
  • Furnished
  • Two Bedroom
  • Two Bathroom
  • Large Terrace
  • Fantastic Views
  • flat
  • Furnished

A stunning modern two bedroom two bathroom penthouse set within the sought-after The Spectrum Buildings on East Road, offering stylish city living in the heart of Shoreditch.

Waterview Thames Ditton Marina 020 8398 8550waterview.co.uk
For the perfect home...just add water.
East Road,
London, N1

Contact

To arrange a viewing call our office on the number below or visit our website.

We aim to make our particulars both accurate and reliable. However they are not guaranteed; nor do they form part of an offer or contract. If you require clarification on any points then please contact us, especially if you're traveling some distance to view. Please note that appliances and heating systems have not been tested and therefore no warranties can be given as to their good working order.

Waterview Thames Ditton Marina 020 8398 8550waterview.co.uk