Print This Page
For the perfect home...just add water.
Shoreditch, E2

£736 Pw / £3,200 Pcm Let (Tenant Info)

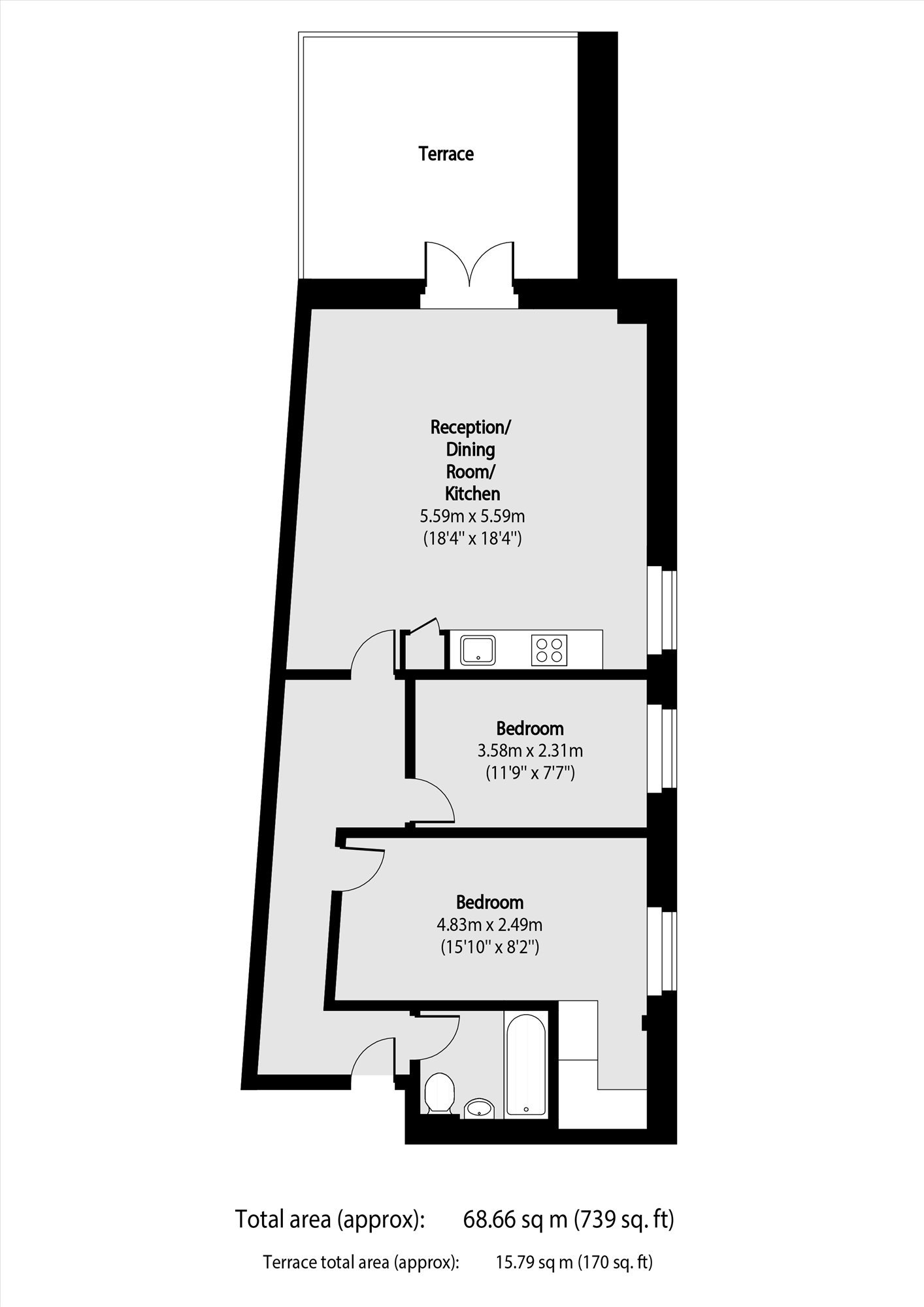
  • 2 Bedrooms
  • 1 Bathroom
  • 1 Reception
    Features
  • Not Specified
  • Top Floor
  • New Build
  • Double Glazing Windows
  • Two bed
  • Wooden Floors
  • Private Terrace
  • flat

A great two double bedroom, one bathroom apartment based in Hoxton. This property has a private terrace and a reception room leading through to an open-plan kitchen, two double bedrooms, one with a walk in wardrobe and a family bathroom. The apartment is in prime location with Old Street station and the City within close proximity. Also, all the trendy bars, restaurants and shops in Spitalfields and Shoreditch are within minutes' walk from the apartment.

Waterview Thames Ditton Marina 020 8398 8550waterview.co.uk
For the perfect home...just add water.
Hackney Road,
LONDON, E2

Contact

To arrange a viewing call our office on the number below or visit our website.

Energy Rating: B. We aim to make our particulars both accurate and reliable. However they are not guaranteed; nor do they form part of an offer or contract. If you require clarification on any points then please contact us, especially if you're traveling some distance to view. Please note that appliances and heating systems have not been tested and therefore no warranties can be given as to their good working order.

Waterview Thames Ditton Marina 020 8398 8550waterview.co.uk