Print This Page
For the perfect home...just add water.
Canary Wharf, E14

£738 Pw / £3,198 Pcm (Tenant Info)

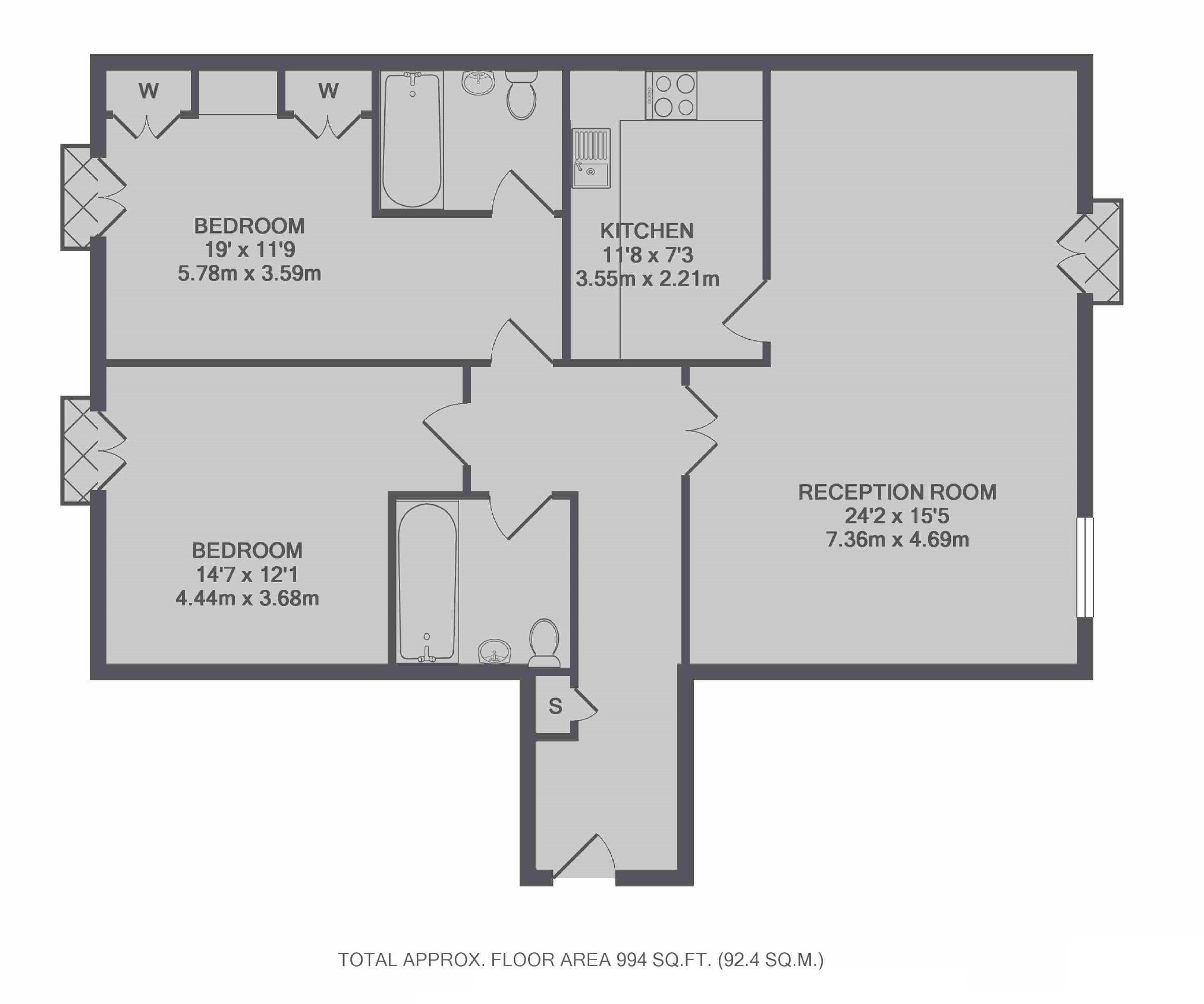
  • 2 Bedrooms
  • 2 Bathrooms
  • 1 Reception
    Features
  • Not Specified
  • Two Bedrooms
  • Two Bathrooms
  • Refurbished
  • River Facing
  • Swimming Pool
  • Residents Gym
  • flat
  • Un-Furnished

A bright newly refurbished two bedroom, two bathroom apartment in this sought after river facing development. This river facing apartment has wooden flooring, a Juliette balcony and access to leisure facilities. This property comes unfurnished

Waterview Canary Wharf 020 7517 0069waterview.co.uk
For the perfect home...just add water.
Homer Drive,
London, E14

Contact

To arrange a viewing call our office on the number below or visit our website.

Energy Rating: C. We aim to make our particulars both accurate and reliable. However they are not guaranteed; nor do they form part of an offer or contract. If you require clarification on any points then please contact us, especially if you're traveling some distance to view. Please note that appliances and heating systems have not been tested and therefore no warranties can be given as to their good working order.

Waterview Canary Wharf 020 7517 0069waterview.co.uk