Print This Page
For the perfect home...just add water.
Haggerston, E2

£738 Pw / £3,198 Pcm (Tenant Info)

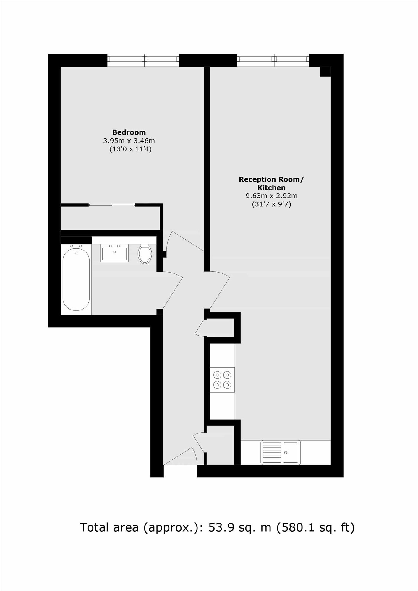
  • 1 Bedroom
  • 1 Bathroom
  • 1 Reception
    Features
  • Not Specified
  • Short Let
  • All Bills Included
  • One Bedroom Apartment
  • Bike Storage
  • Sought After Location
  • Great Transport Links
  • flat

SHORT LET - ALL BILLS INCLUDED - A modern, one bedroom apartment with bright, modern interiors set within a sought after location. The property has a large, open plan living room with space to dine and a renovated fully integrated kitchen. The double bedroom has a large built in wardrobe, the family bathroom is done to a high standard and the entrance hallway has a wide storage cupboard. The apartment is presented with modern interiors throughout and has an abundance of natural light from the la...

Waterview Thames Ditton Marina 020 8398 8550waterview.co.uk
For the perfect home...just add water.
Kingsland Road,
London, E2

Contact

To arrange a viewing call our office on the number below or visit our website.

Energy Rating: C. We aim to make our particulars both accurate and reliable. However they are not guaranteed; nor do they form part of an offer or contract. If you require clarification on any points then please contact us, especially if you're traveling some distance to view. Please note that appliances and heating systems have not been tested and therefore no warranties can be given as to their good working order.

Waterview Thames Ditton Marina 020 8398 8550waterview.co.uk