Print This Page
For the perfect home...just add water.
Bethnal Green, E2

£575 Pw / £2,500 Pcm (Tenant Info)

  • 2 Bedrooms
  • 2 Bathrooms
  • 1 Reception
    Features
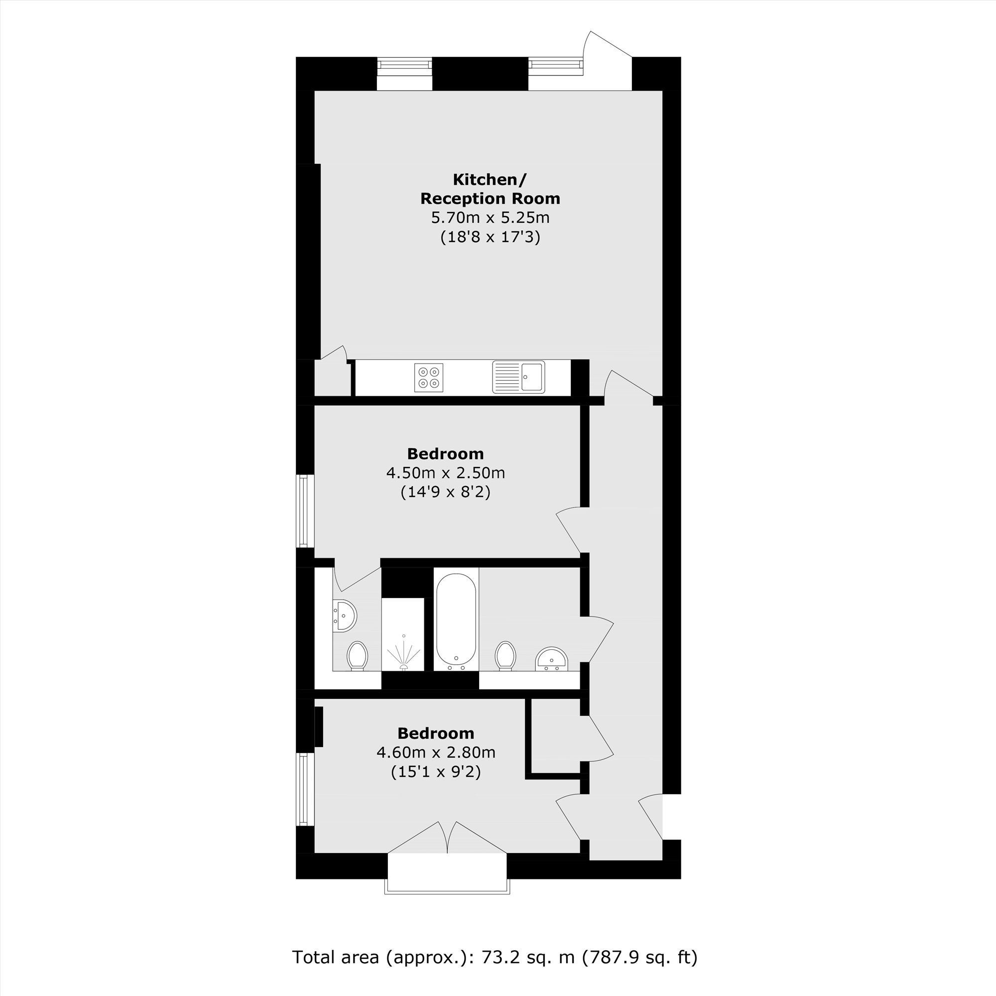
  • 73 sqm Max Size
  • Not Specified
  • Two bedrooms
  • Two bathrooms
  • Balcony
  • Modern development
  • Views over Meath Gardens
  • Sought after location
  • flat
  • Furnished

A well-presented two bedroom, two bathroom apartment located on Meath Crescent. The property features a spacious open plan living area, two double bedrooms and two bathrooms. Further benefits include a private balcony and a Juliette balcony off the living space.

Waterview Thames Ditton Marina 020 8398 8550waterview.co.uk
For the perfect home...just add water.
Meath Crescent,
London, E2

Contact

To arrange a viewing call our office on the number below or visit our website.

We aim to make our particulars both accurate and reliable. However they are not guaranteed; nor do they form part of an offer or contract. If you require clarification on any points then please contact us, especially if you're traveling some distance to view. Please note that appliances and heating systems have not been tested and therefore no warranties can be given as to their good working order.

Waterview Thames Ditton Marina 020 8398 8550waterview.co.uk