Print This Page
For the perfect home...just add water.
Shoreditch, EC1V

£575 Pw / £2,500 Pcm (Tenant Info)

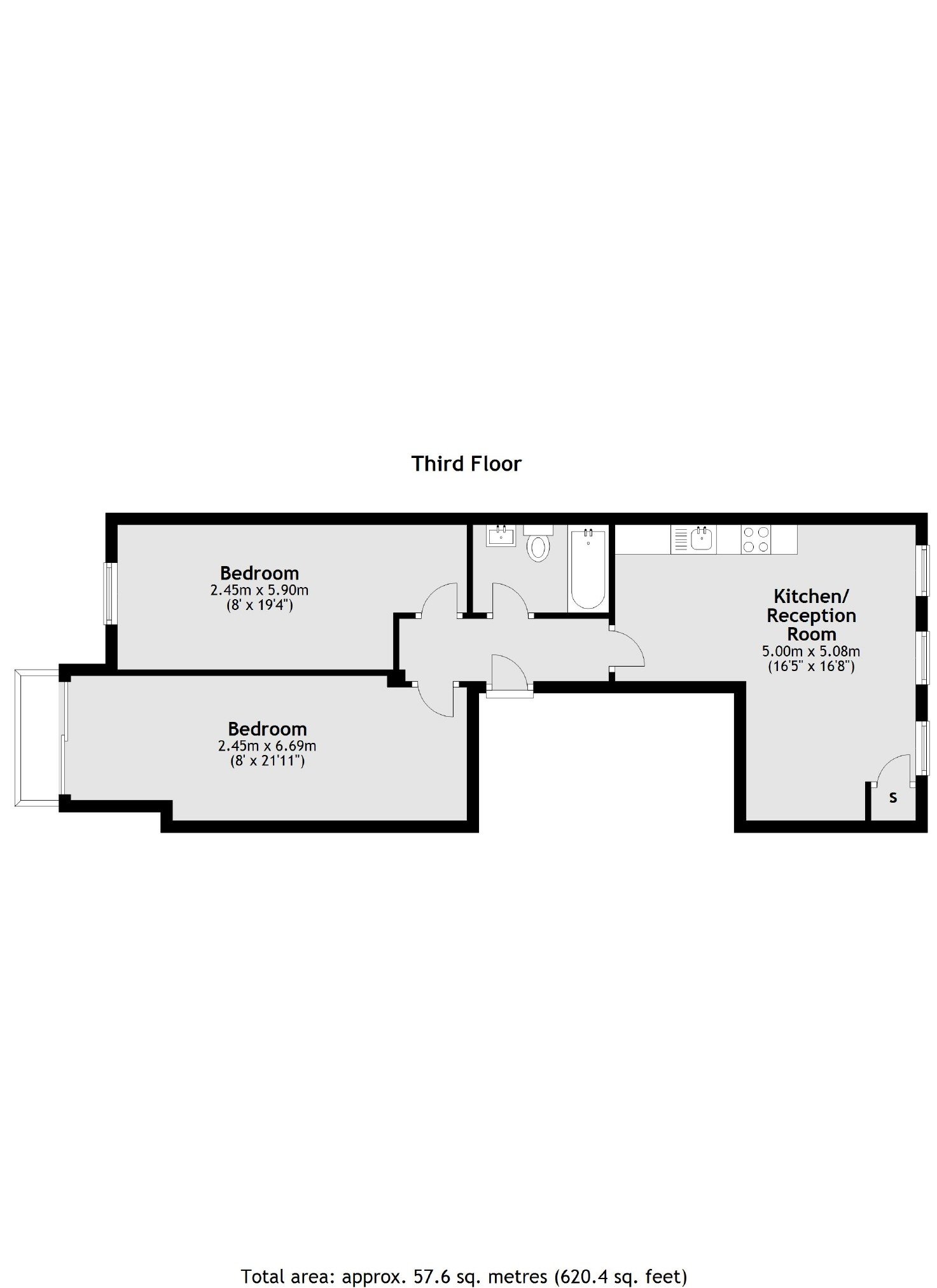
  • 2 Bedrooms
  • 1 Bathroom
  • 1 Reception
    Features
  • Not Specified
  • Two Bedrooms
  • Third Floor
  • Old Street
  • Unfurnished
  • Open Plan
  • Private Balcony
  • flat

A recently refurbished two bedroom apartment located on the third floor of this development. This apartment has two bedrooms, a large open plan reception with kitchen area, main bathroom and private balcony. The property also has wooden flooring throughout and is available unfurnished.

Waterview Thames Ditton Marina 020 8398 8550waterview.co.uk
For the perfect home...just add water.
Old Street,
London, EC1V

Contact

To arrange a viewing call our office on the number below or visit our website.

Energy Rating: C. We aim to make our particulars both accurate and reliable. However they are not guaranteed; nor do they form part of an offer or contract. If you require clarification on any points then please contact us, especially if you're traveling some distance to view. Please note that appliances and heating systems have not been tested and therefore no warranties can be given as to their good working order.

Waterview Thames Ditton Marina 020 8398 8550waterview.co.uk