Print This Page
For the perfect home...just add water.
Wapping, E1W

£1,269 Pw / £5,499 Pcm (Tenant Info)

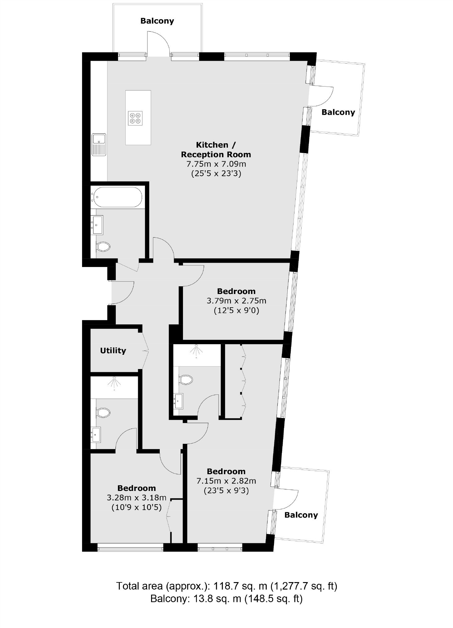
  • 3 Bedrooms
  • 3 Bathrooms
  • 1 Reception
    Features
  • Not Specified
  • Three Double Bedrooms
  • Three Bathrooms
  • 1257 Sq Ft
  • Furnished
  • Three Balconies
  • Parking
  • flat
  • Furnished

Three bedroom, three bathroom property located on the sixteenth floor. Offered fully furnished to a high standard, the property also benefits from three private balconies

Waterview Wapping 020 7650 5359waterview.co.uk
For the perfect home...just add water.
Vaughan Way,
London, E1W

Contact

To arrange a viewing call our office on the number below or visit our website.

We aim to make our particulars both accurate and reliable. However they are not guaranteed; nor do they form part of an offer or contract. If you require clarification on any points then please contact us, especially if you're traveling some distance to view. Please note that appliances and heating systems have not been tested and therefore no warranties can be given as to their good working order.

Waterview Wapping 020 7650 5359waterview.co.uk