Print This Page
For the perfect home...just add water.
Whitmore Road, N1

£805 Pw / £3,500 Pcm (Tenant Info)

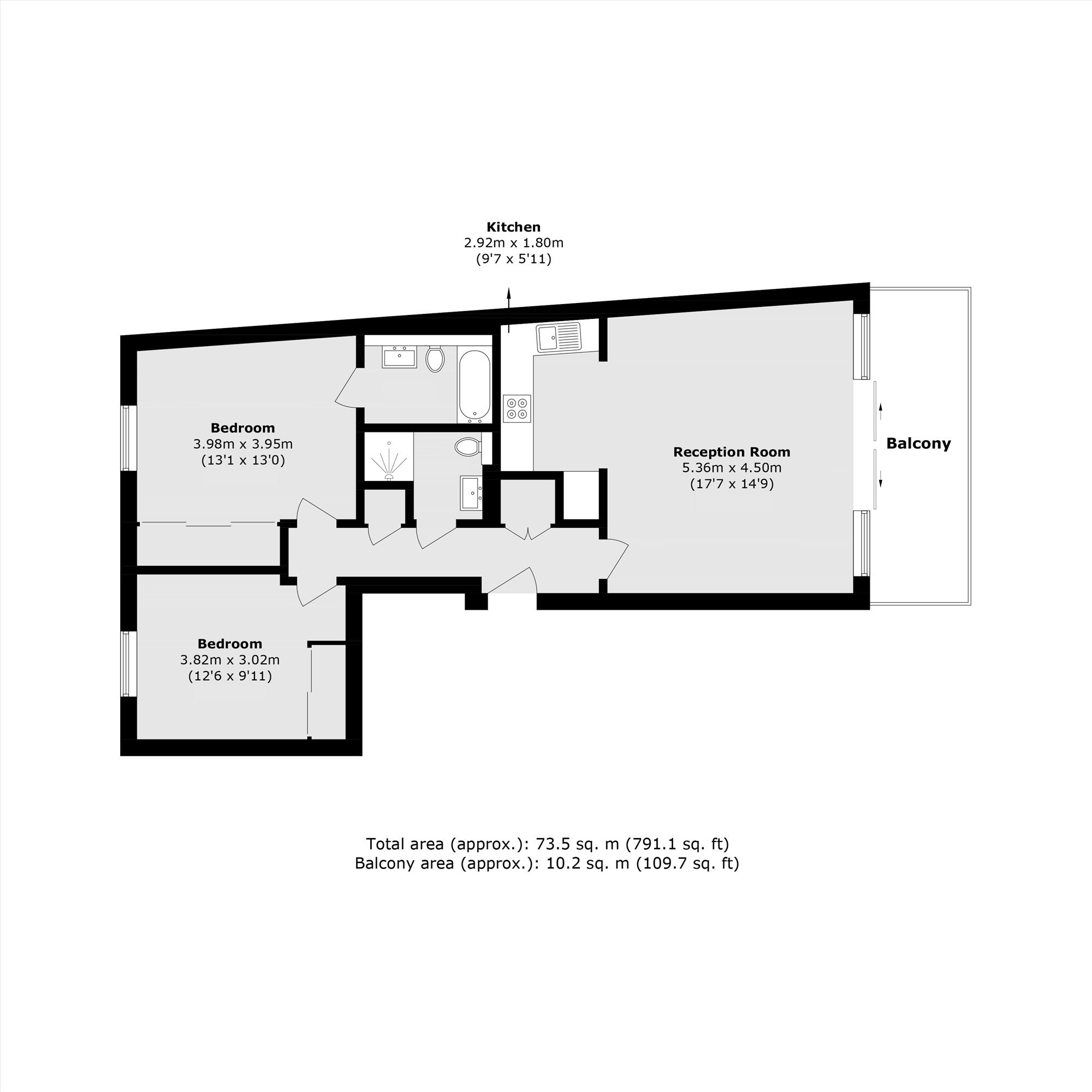
  • 2 Bedrooms
  • 2 Bathrooms
  • 1 Reception
    Features
  • Not Specified
  • Two Bedroom
  • Two Bathrooms
  • Warehouse Conversion
  • Balcony
  • Partly furnished
  • Third Floor
  • flat
  • Furnished

This two bedroom, two bathroom warehouse conversion located beside Regent's Canal. This property consists of a large, open plan kitchen/reception area which leads onto the private balcony, two spacious bedrooms, one with en suite, and a modern family bathroom. The lat is modern in style throughout and offers plenty of storage space.

Waterview Thames Ditton Marina 020 8398 8550waterview.co.uk
For the perfect home...just add water.
Whitmore Road,
London, N1

Contact

To arrange a viewing call our office on the number below or visit our website.

We aim to make our particulars both accurate and reliable. However they are not guaranteed; nor do they form part of an offer or contract. If you require clarification on any points then please contact us, especially if you're traveling some distance to view. Please note that appliances and heating systems have not been tested and therefore no warranties can be given as to their good working order.

Waterview Thames Ditton Marina 020 8398 8550waterview.co.uk