Print This Page
For the perfect home...just add water.
Rotherhithe, SE16

£644 Pw / £2,800 Pcm (Tenant Info)

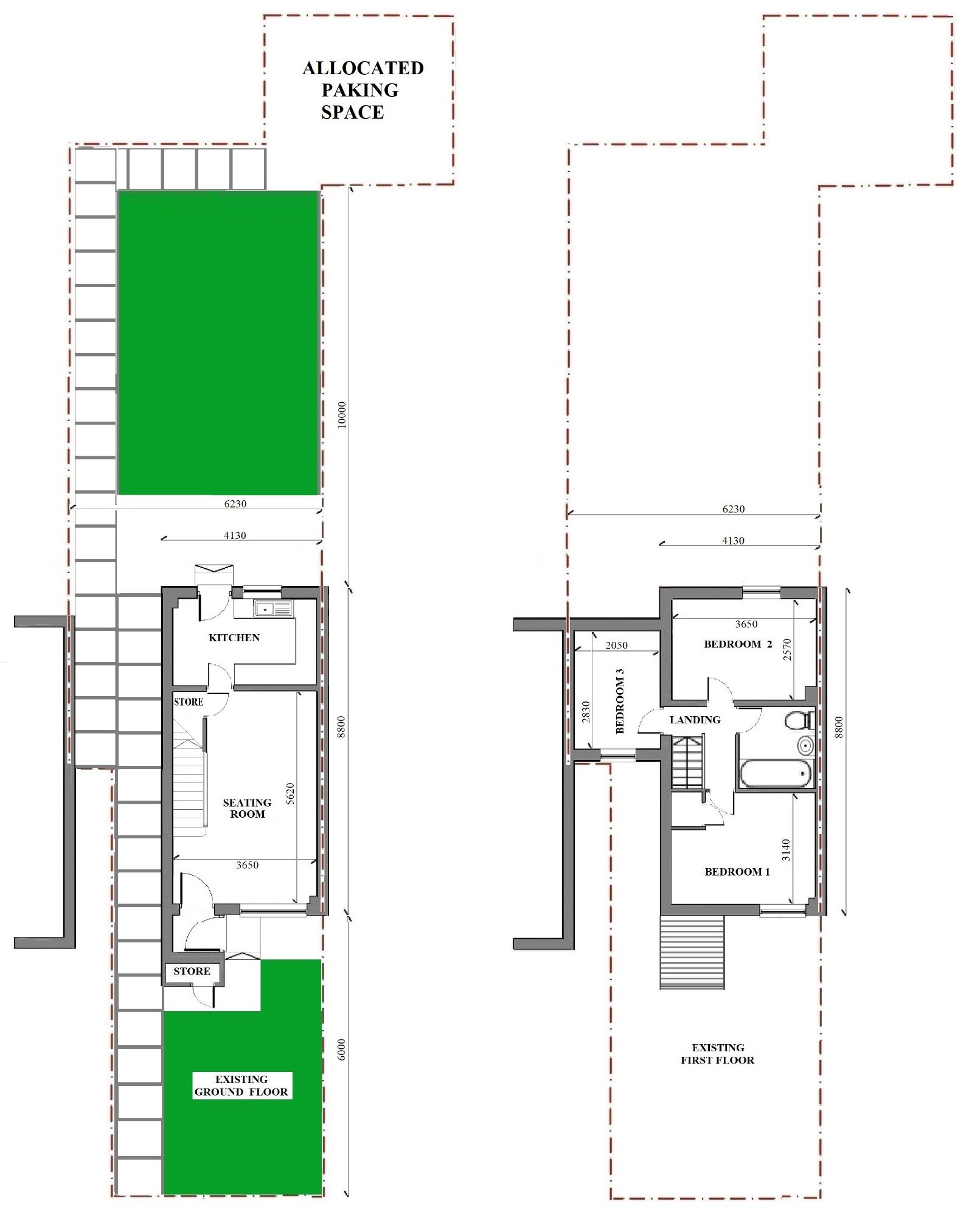
  • 3 Bedrooms
  • 1 Bathroom
  • 1 Reception
    Features
  • Not Specified
  • Three Bedrooms
  • Furnished
  • Front Garden
  • Rear Garden
  • Parking
  • Canada Water
  • house

This three bedroom semi-detached house is situated in Canada Water, nestled between the Ecological Park and the River Thames. In an area surrounded by canals and ponds, it offers a peaceful and picturesque residential setting, yet remains conveniently close to the shopping centre, and other local amenities. A pleasant canal-side walk leads directly to the shopping centre. At one end of Dock Hill Avenue lies a scenic pond, while just across the road you'll find a popular riverside bar and restaur...

Waterview Thames Ditton Marina 020 8398 8550waterview.co.uk
For the perfect home...just add water.
Dock Hill Avenue,
London, SE16

Contact

To arrange a viewing call our office on the number below or visit our website.

We aim to make our particulars both accurate and reliable. However they are not guaranteed; nor do they form part of an offer or contract. If you require clarification on any points then please contact us, especially if you're traveling some distance to view. Please note that appliances and heating systems have not been tested and therefore no warranties can be given as to their good working order.

Waterview Thames Ditton Marina 020 8398 8550waterview.co.uk