Print This Page
For the perfect home...just add water.
Silvertown, E16

£300,000

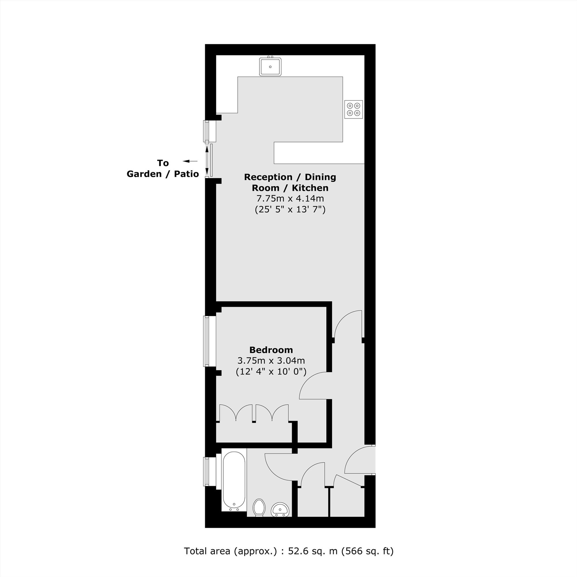
  • 1 Bedroom
  • 1 Bathroom
  • 1 Reception
    Features
  • Not Specified
  • 566 Square foot
  • One Bedroom
  • Communal Garden
  • Allocated Parking
  • Concierge Services
  • Residents Gym
  • flat

We are pleased to present this one-bedroom apartment, offering 566 sq ft of internal space. The property features patio access from the living area, providing plenty of natural light, and a bedroom overlooking the development's private garden, with secure allocated parking included. Residents benefit from a 24-hour concierge and a gym, while Royal Wharf and its restaurants are nearby, along with excellent transport links.

Waterview Canary Wharf 020 7517 0069waterview.co.uk
For the perfect home...just add water.
Barrier Point Road,
London, E16

Contact

To arrange a viewing call our office on the number below or visit our website.

Energy Rating: C. We aim to make our particulars both accurate and reliable. However they are not guaranteed; nor do they form part of an offer or contract. If you require clarification on any points then please contact us, especially if you're traveling some distance to view. Please note that appliances and heating systems have not been tested and therefore no warranties can be given as to their good working order.

Waterview Canary Wharf 020 7517 0069waterview.co.uk