Print This Page
For the perfect home...just add water.
Bethnal Green, E2

£600,000

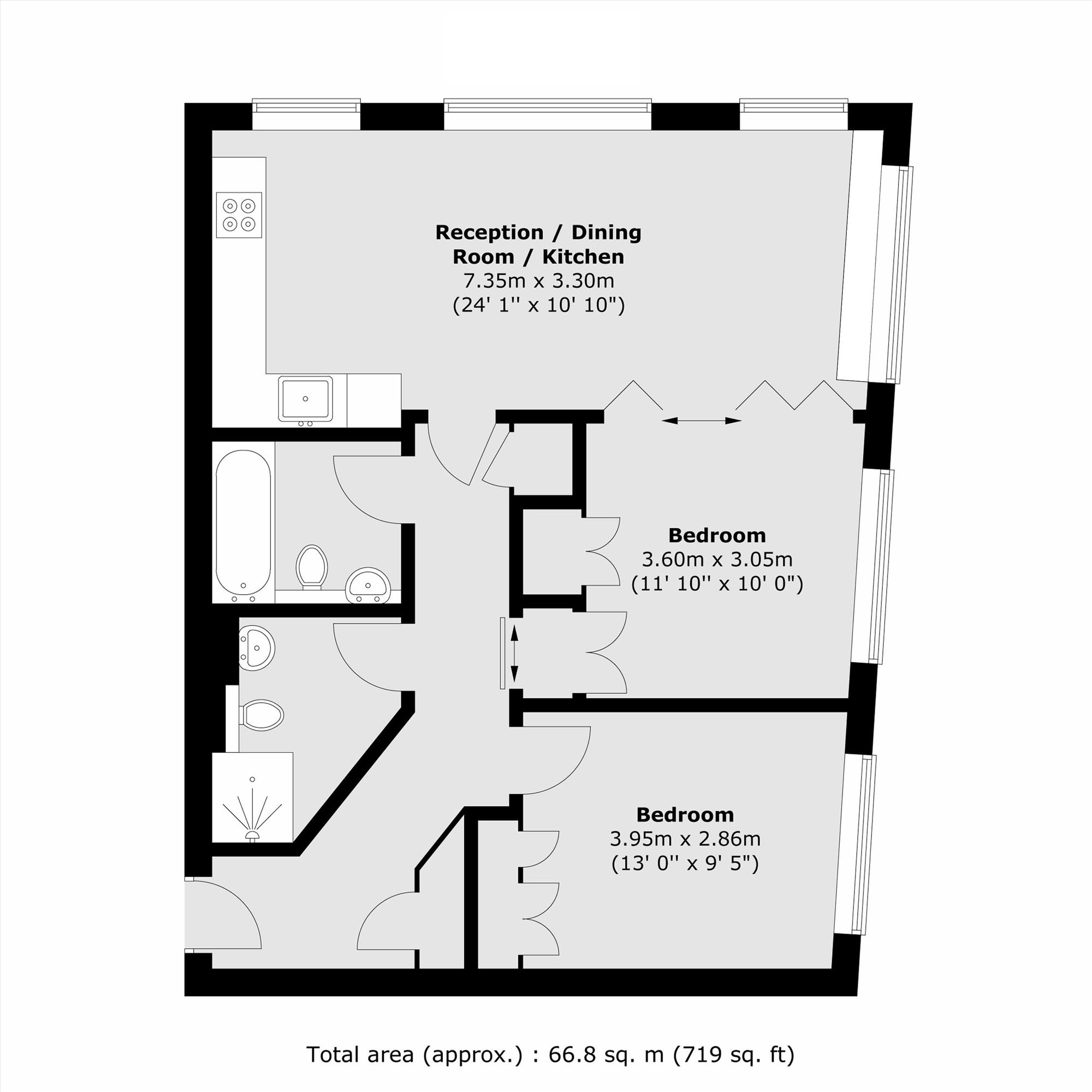
  • 2 Bedrooms
  • 2 Bathrooms
  • 1 Reception
    Features
  • 67 sqm Max Size
  • Not Specified
  • 6th floor with far-reaching views
  • Modernised throughout
  • Two bedrooms
  • Two bathrooms
  • Secure, undercroft parking space
  • Daytime Porter
  • flat

Two bedroom, two bathroom renovated apartment on the 6th floor with far-reaching views. The apartment has a spacious, open plan living room with ample space to dine and a modernised, fully integrated kitchen. This area occupies the corner of the building where you have far-reaching views South East to Canary Wharf and the Docklands and West onto the City skyline. The apartment has two double bedrooms, both of which have in-built storage. The second bedroom can be accessed via a bi-fold door from...

Waterview Thames Ditton Marina 020 8398 8550waterview.co.uk
For the perfect home...just add water.
Bethnal Green Road,
London, E2

Contact

To arrange a viewing call our office on the number below or visit our website.

We aim to make our particulars both accurate and reliable. However they are not guaranteed; nor do they form part of an offer or contract. If you require clarification on any points then please contact us, especially if you're traveling some distance to view. Please note that appliances and heating systems have not been tested and therefore no warranties can be given as to their good working order.

Waterview Thames Ditton Marina 020 8398 8550waterview.co.uk