Print This Page
For the perfect home...just add water.
Upper Thames Street, EC4V

£2,250,000

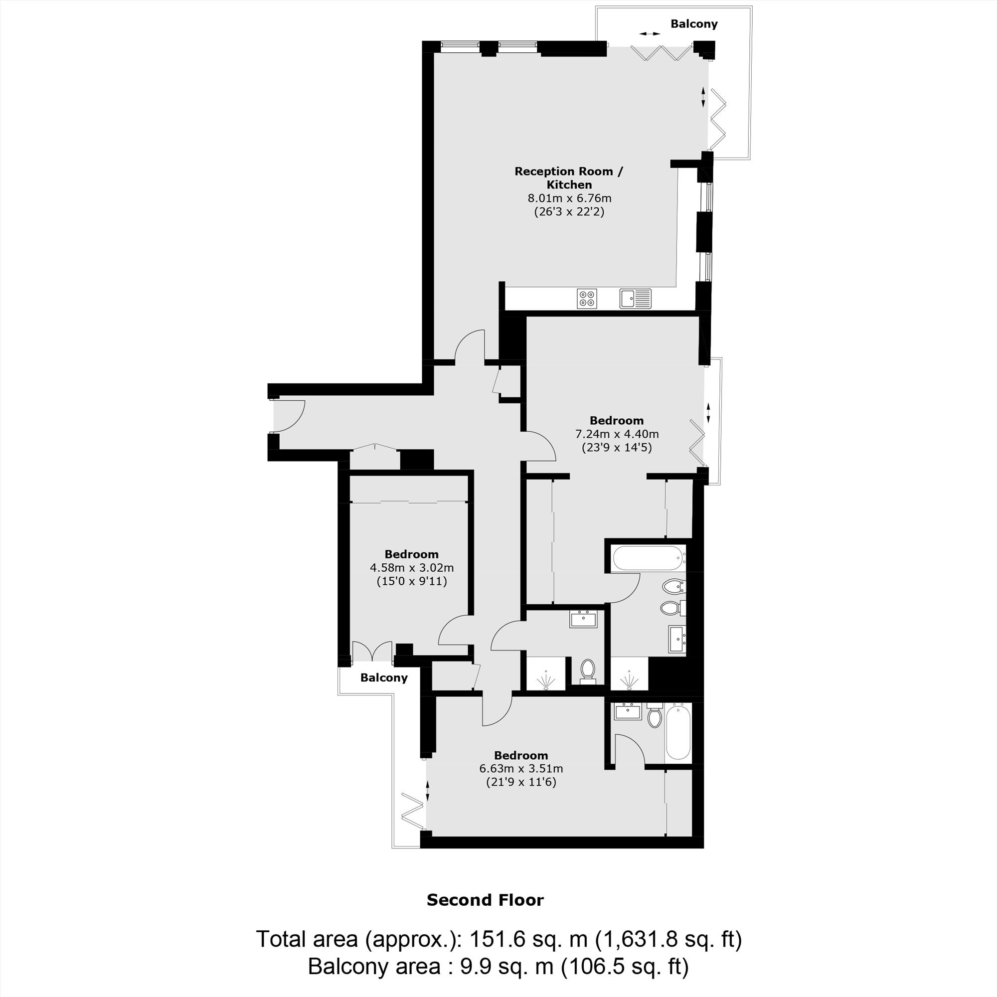
  • 3 Bedrooms
  • 3 Bathrooms
  • 1 Reception
Waterview Thames Ditton Marina 020 8398 8550waterview.co.uk
    Features
  • Not Specified
  • Three Double Bedrooms
  • Unobstructed River Views
  • Great Location
  • Off Street Parking
  • Private Balcony
  • Modern
  • flat

A well-presented, three double bedroom apartment with an unobstructed view of the Thames, located in Sir John Lyon House. The apartment has a large south-facing, dual-aspect reception room with bi-folding doors opening onto a private balcony with uninterrupted views of the River Thames, The Tate Modern, The Shard and the Globe Theatre. To the rear, the apartment has three double bedrooms, two with en-suite bathrooms and one guest bathroom. The property benefits from underfloor heating, comfort c...

For the perfect home...just add water.
High Timber Street,
London, EC4V

Contact

To arrange a viewing call our office on the number below or visit our website.

Energy Rating: B. We aim to make our particulars both accurate and reliable. However they are not guaranteed; nor do they form part of an offer or contract. If you require clarification on any points then please contact us, especially if you're traveling some distance to view. Please note that appliances and heating systems have not been tested and therefore no warranties can be given as to their good working order.

Waterview Thames Ditton Marina 020 8398 8550waterview.co.uk