 
                     
                         
                         
                    £585,000
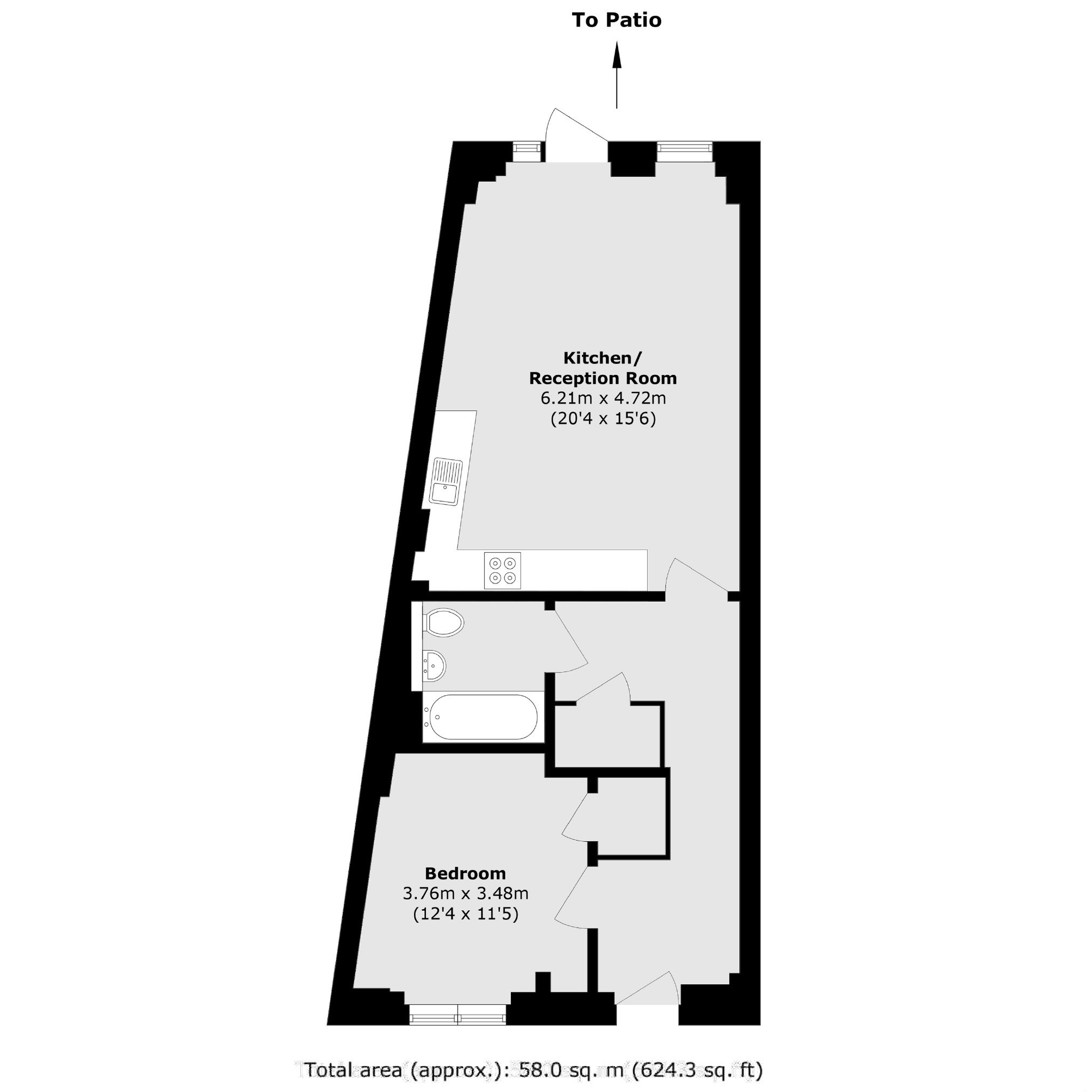
A beautifully finished ground-floor apartment spanning over 600 sq ft, featuring a bright open-plan living area with a sleek contemporary kitchen opening onto a west-facing private garden. Includes a large double bedroom, modern bathroom, and separate utility cupboard. Offered chain free.