Print This Page
For the perfect home...just add water.
Greenwich, SE10

£500,000

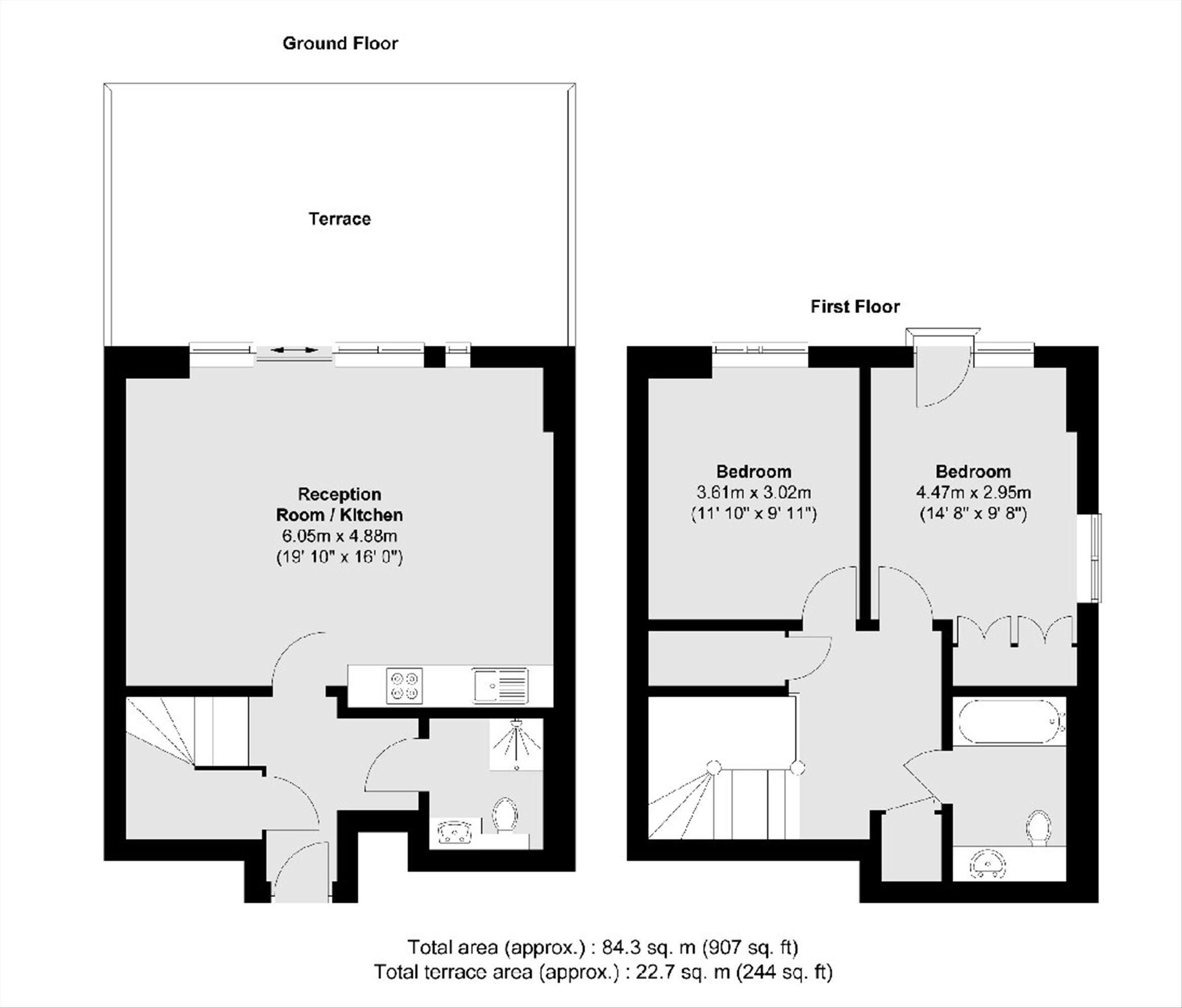
  • 2 Bedrooms
  • 2 Bathrooms
  • 1 Reception
    Features
  • Not Specified
  • Two Bedrooms
  • Two Bathrooms
  • Split Level
  • Wooden Flooring
  • Secure Parking
  • Concierge
  • flat

Enjoy modern riverside living in this stylish split-level, two-double-bedroom apartment, thoughtfully designed across two floors and featuring two full bathrooms for added comfort and convenience. The home overlooks the serene Ecology Park lake and the River Thames, offering a rare blend of nature and contemporary design. An open-plan reception leads onto a generous sun-deck, creating a seamless indoor outdoor space perfect for relaxing or entertaining. Warm wooden flooring and ample room throug...

Waterview Greenwich 020 7313 3675waterview.co.uk
For the perfect home...just add water.
Renaissance Walk,
London, SE10

Contact

To arrange a viewing call our office on the number below or visit our website.

Energy Rating: C. We aim to make our particulars both accurate and reliable. However they are not guaranteed; nor do they form part of an offer or contract. If you require clarification on any points then please contact us, especially if you're traveling some distance to view. Please note that appliances and heating systems have not been tested and therefore no warranties can be given as to their good working order.

Waterview Greenwich 020 7313 3675waterview.co.uk