Print This Page
For the perfect home...just add water.
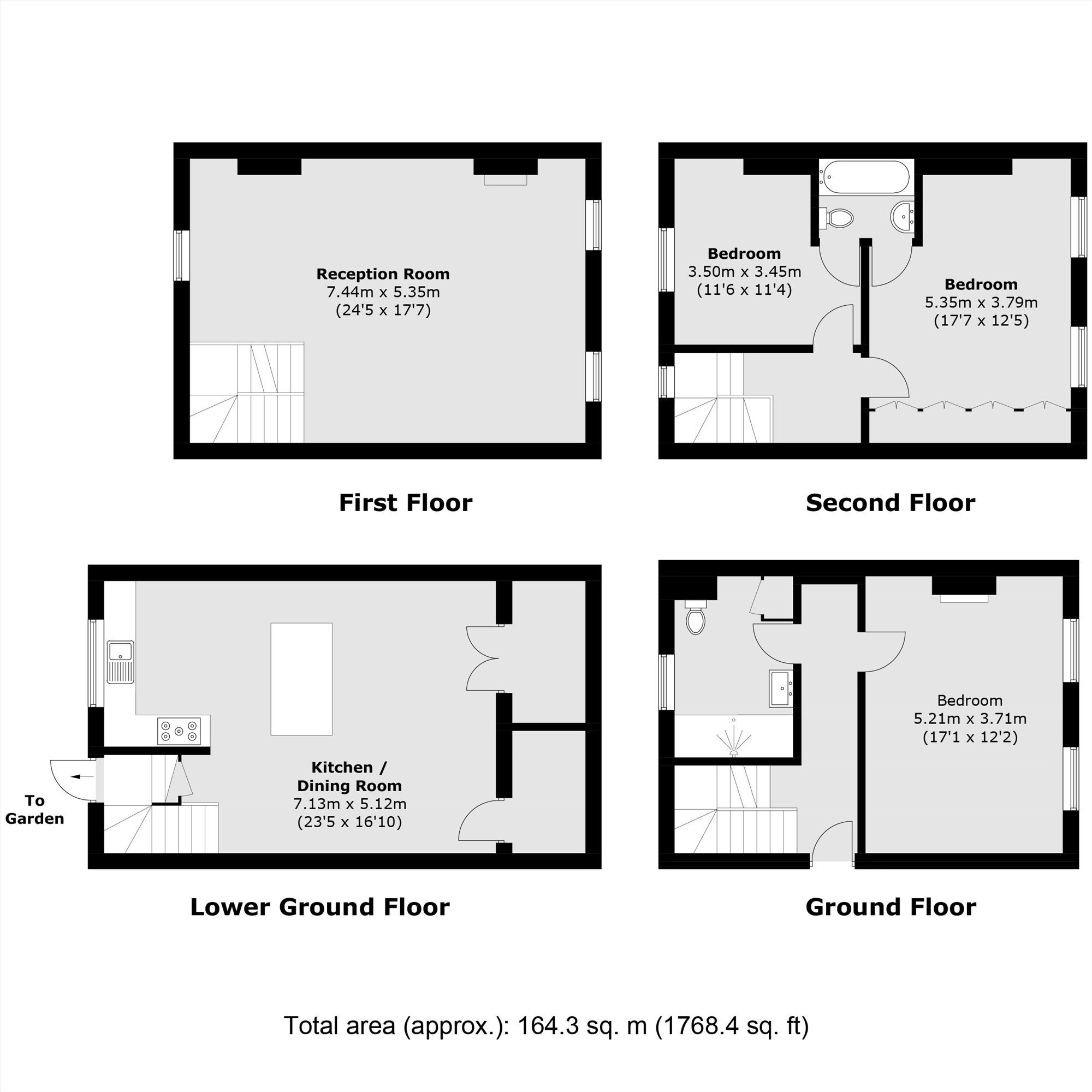
Stepney Green, E1

£1,450,000

  • 3 Bedrooms
  • 2 Bathrooms
  • 1 Reception
Waterview Thames Ditton Marina 020 8398 8550waterview.co.uk
    Features
  • Not Specified
  • Three Double Bedrooms
  • Two Bathrooms
  • Modern
  • Period Features
  • Private Garden
  • Central Location
  • flat

An impressive three bedroom, Grade II listed town house located in the heart of Whitechapel. Spread over four stories, this recently refurbished property, including a new roof, combines contemporary living with sought after period features. The house compromises a double reception room with fireplace, a separate dining room leading through to a contemporary galley kitchen with integrated appliances, two large double bedrooms, a third guest double bedroom and two luxury bathrooms.

For the perfect home...just add water.
Sidney Square,
London, E1

Contact

To arrange a viewing call our office on the number below or visit our website.

Energy Rating: D. We aim to make our particulars both accurate and reliable. However they are not guaranteed; nor do they form part of an offer or contract. If you require clarification on any points then please contact us, especially if you're traveling some distance to view. Please note that appliances and heating systems have not been tested and therefore no warranties can be given as to their good working order.

Waterview Thames Ditton Marina 020 8398 8550waterview.co.uk