Print This Page
For the perfect home...just add water.
Bethnal Green, E2

£2,000,000

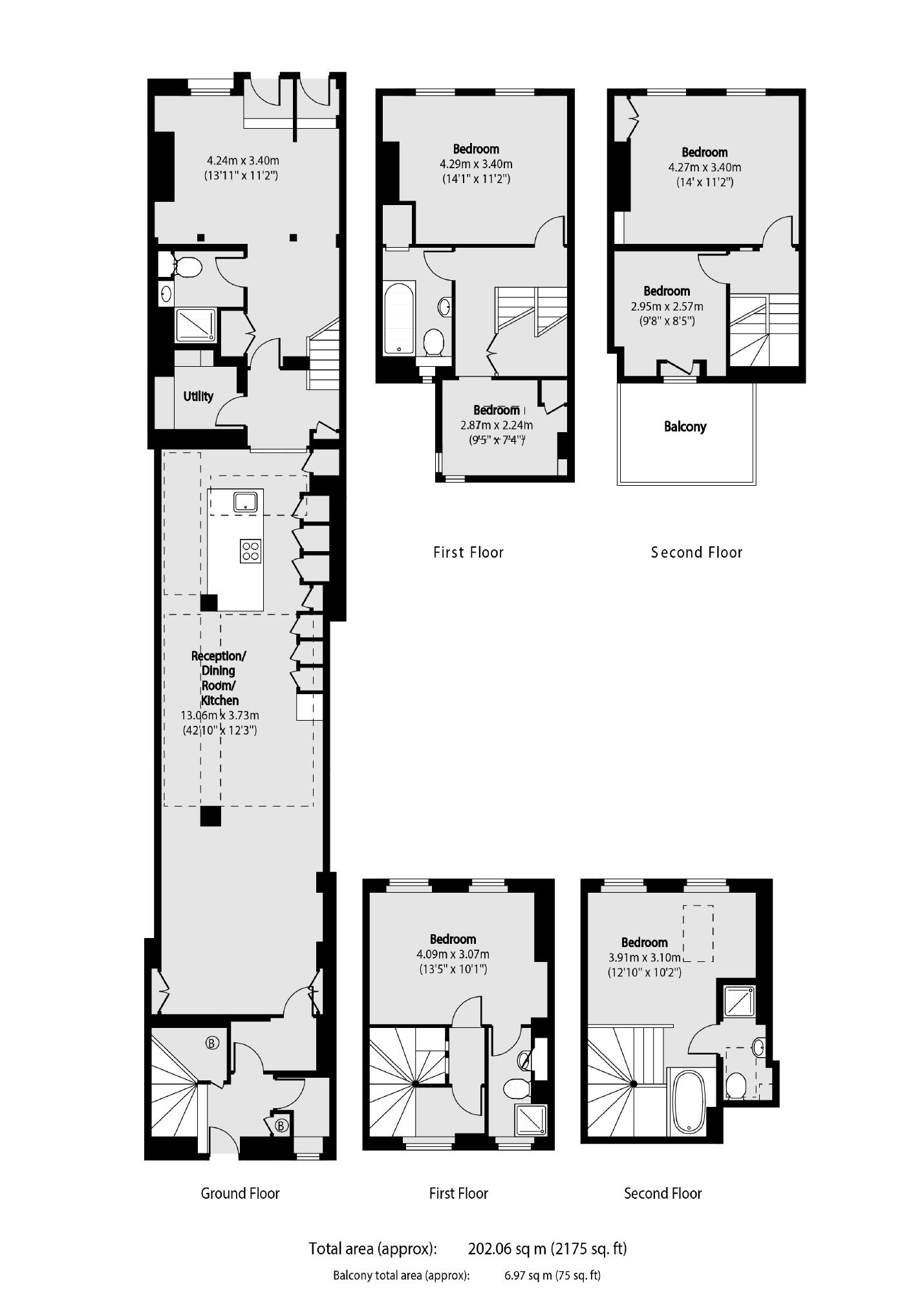
  • 6 Bedrooms
  • 4 Bathrooms
  • 1 Reception
Waterview Thames Ditton Marina 020 8398 8550waterview.co.uk
    Features
  • 203 sqm Max Size
  • Not Specified
  • Six Double Bedrooms
  • Four Bathrooms
  • Office
  • Polished Concrete Floors
  • Conversion
  • Wooden Flooring
  • Sash Windows
  • house

A five/six bedroom property, formally a Granary and Linen shop brought together by Guard Tillman Pollock Architects. Measuring over 2,170 sqft this home is modern with stand out features including polished concrete floors, Bulthaup designer kitchen and maintains many of its' original features.

For the perfect home...just add water.
Peary Place,
London, E2

Contact

To arrange a viewing call our office on the number below or visit our website.

Energy Rating: E. We aim to make our particulars both accurate and reliable. However they are not guaranteed; nor do they form part of an offer or contract. If you require clarification on any points then please contact us, especially if you're traveling some distance to view. Please note that appliances and heating systems have not been tested and therefore no warranties can be given as to their good working order.

Waterview Thames Ditton Marina 020 8398 8550waterview.co.uk