Print This Page
For the perfect home...just add water.
Brick Lane, E1

£1,900,000

  • 7 Bedrooms
  • 3 Bathrooms
  • 1 Reception
Waterview Thames Ditton Marina 020 8398 8550waterview.co.uk
    Features
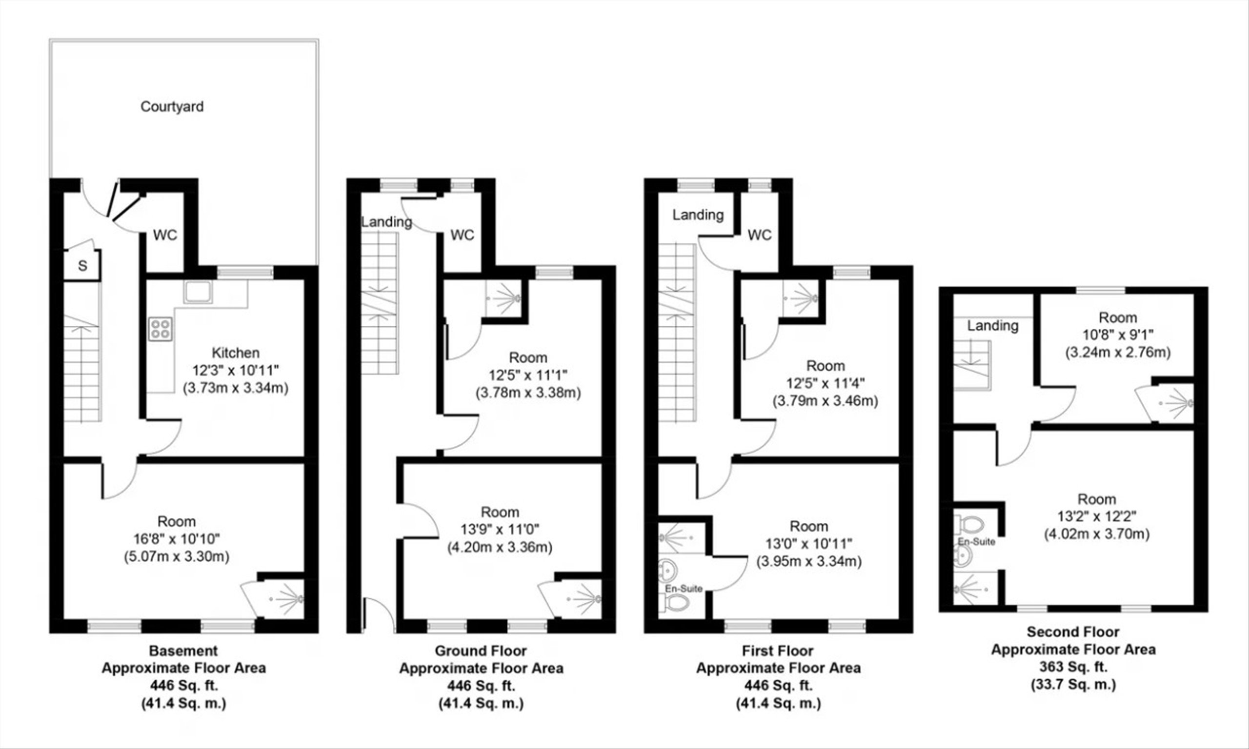
  • 158 sqm Max Size
  • Not Specified
  • Freehold
  • 6/7 Bedrooms
  • 5 Bathrooms
  • Significant space
  • Private Courtyard
  • Sought after location
  • house

6/7 Bedroom freehold house just off of Brick Lane. The property has a spacious living room and separate kitchen on the lower ground level, this level also gives access to the properties private courtyard. The property then has 6 double bedrooms arranged over the three upper floors, two of the master rooms have full en-suites whilst every room has a shower and there are three WC's, one on each floor. This is a great residential prospect if reconfigured or a good investment opportunity as the hous...

For the perfect home...just add water.
Woodseer Street,
London, E1

Contact

To arrange a viewing call our office on the number below or visit our website.

We aim to make our particulars both accurate and reliable. However they are not guaranteed; nor do they form part of an offer or contract. If you require clarification on any points then please contact us, especially if you're traveling some distance to view. Please note that appliances and heating systems have not been tested and therefore no warranties can be given as to their good working order.

Waterview Thames Ditton Marina 020 8398 8550waterview.co.uk