Print This Page
For the perfect home...just add water.
Wraysbury, TW19

£1,275,000

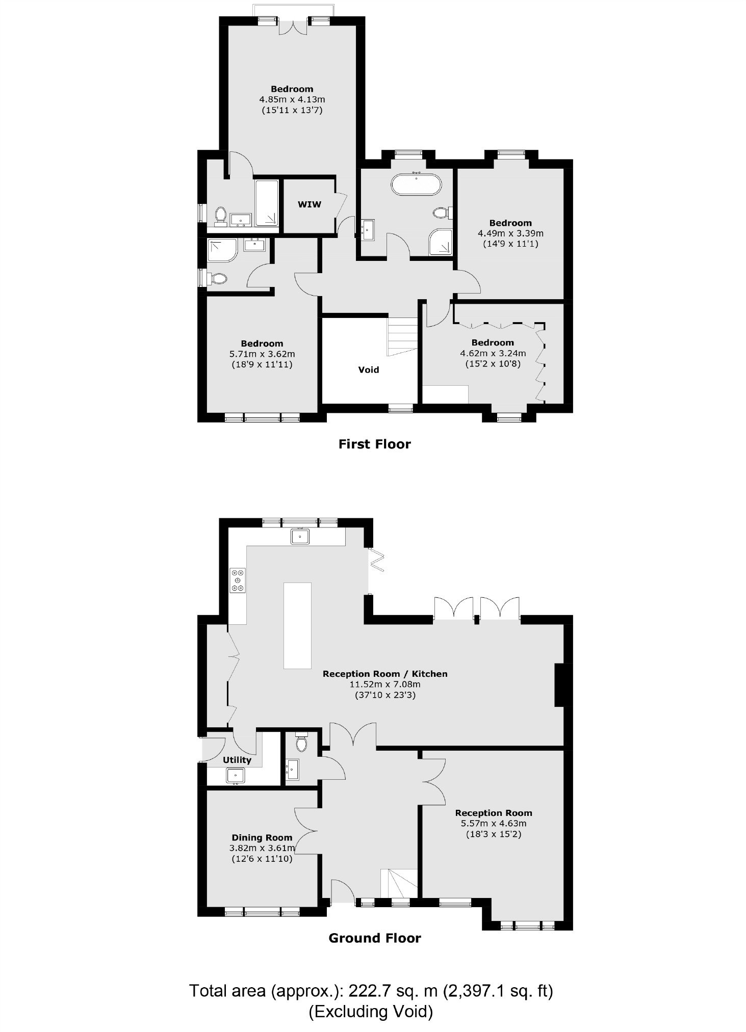
  • 4 Bedrooms
  • 3 Bathrooms
  • 3 Receptions
Waterview Thames Ditton Marina 020 8398 8550waterview.co.uk
    Features
  • Not Specified
  • Detached House
  • Four Double Bedrooms
  • Three Bathrooms
  • Lakeside
  • Large Driveway
  • High Specification
  • House - detached

A stunning, detached family home which has been built to a very high standard with wonderful views of the lake behind and 150' lawned garden.

For the perfect home...just add water.
Welley Road,
Staines-Upon-Thames, TW19

Contact

To arrange a viewing call our office on the number below or visit our website.

Energy Rating: B. We aim to make our particulars both accurate and reliable. However they are not guaranteed; nor do they form part of an offer or contract. If you require clarification on any points then please contact us, especially if you're traveling some distance to view. Please note that appliances and heating systems have not been tested and therefore no warranties can be given as to their good working order.

Waterview Thames Ditton Marina 020 8398 8550waterview.co.uk