Sandhills MeadowShepperton, TW17

£689 Pw / £2,995 Pcm (Tenant Info)

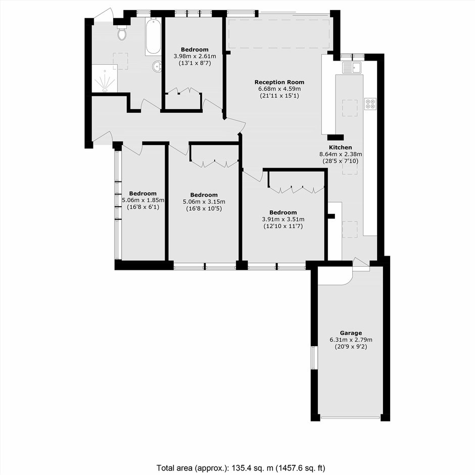
  • 4 Bedrooms
  • 1 Bathroom
  • 1 Reception

Stunning riverside bungalow with open-plan living, swimming pool, private mooring, spacious bedrooms and exceptional outdoor entertaining spaces.

Stunning riverside bungalow with open-plan living, swimming pool, private mooring, spacious bedrooms and exceptional outdoor entertaining spaces.

in partnership with Dexters

93 Station Road,
Hampton, TW12 2BD

Call us 7 days a week 8am-8pm

Quick Search

Top