Forge SquareCanary Wharf, E14

£450,000

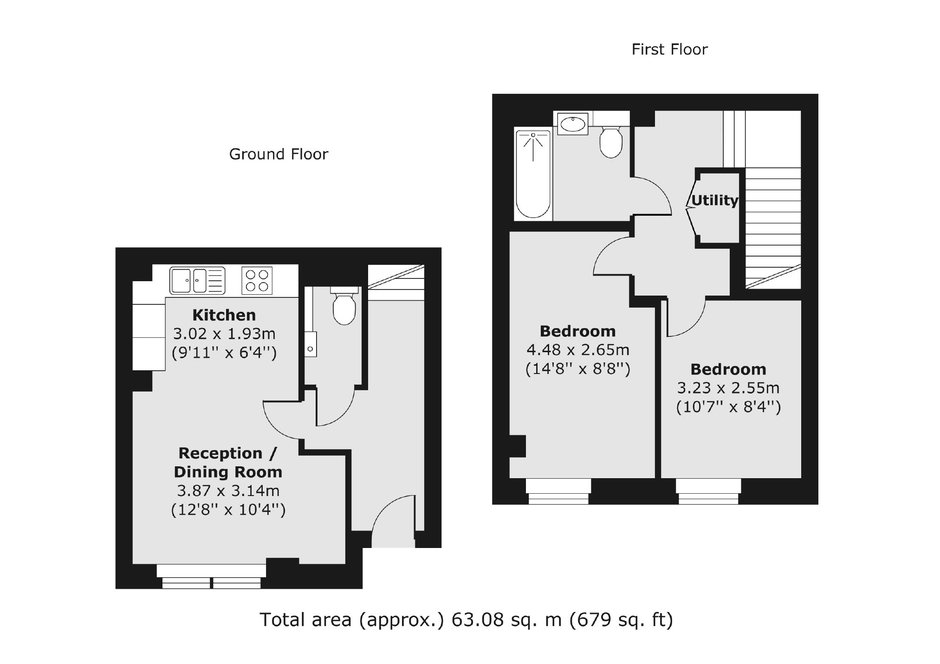
  • 2 Bedrooms
  • 1 Bathroom
  • 1 Reception

A modern two bedroom split level home offering 679 Square Feet of ample living space. Features to include gated entrance, open plan reception area, private entrance and concierge service.

Forge Square located within a gated development in E14 on the Isle of Dogs. The property is 0.5 miles from Island Gardens DLR Station which provides good links to Canary Wharf and The City.

Tenure: Leasehold
Council Tax Band: E

Information contained within this listing is for guidance only and should be checked and confirmed (prior to proceeding).

in partnership with Dexters

39 Westferry Road,
Canary Wharf, E14 8JH

Call us 7 days a week 8am-8pm

Quick Search

Top