Premiere PlaceCanary Wharf, E14

£375,000

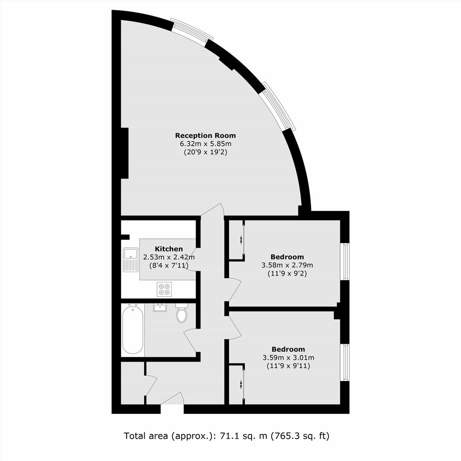
  • 2 Bedrooms
  • 1 Bathroom
  • 1 Reception

Offered to the market chain free is this two double bedroom apartment, offering 765 sq. Ft. Of well-proportioned living space and ideally located for Canary Wharf. Features include a secure entry phone system, lift access, concierge service and allocated parking.

The property benefits from excellent transport links, with Westferry DLR Station just 0.1 miles away, providing easy access to Canary Wharf, the City and beyond. Canary Wharf Underground Station (Jubilee line) and the Elizabeth Line are also within close proximity, offering swift connections to central London and across the capital.

Tenure: Leasehold Lease Years Remaining: 969
Service Charge: £5,146 (Yearly)
Annual Ground Rent: £0
Council Tax Band: D

Information contained within this listing is for guidance only and should be checked and confirmed (prior to proceeding).

in partnership with Dexters

39 Westferry Road,
Canary Wharf, E14 8JH

Call us 7 days a week 8am-8pm

Quick Search

Top