Maryland PointStratford, E15

£650,000

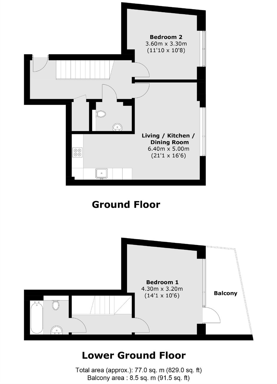
  • 2 Bedrooms
  • 1 Bathroom
  • 1 Reception

Minutes from Maryland station, The Hudson apartments have been carefully crafted to provide a luxurious retreat from city life. With views of the new Stratford skyline and the extensive Olympic Park. Features a landscaped roof garden, created in partnership Hackney Herbal and Permablitz London. Each apartment enjoys a stylish, clean aesthetic, with handmade Scandinavian kitchens.

The Hudson is set within one of East London's best connected neighbourhoods. The Elizabeth Line at Maryland station offers easy commute into Stratford, Liverpool Street and Heathrow Airport. Stratford Park and The Olympic Park are just a short walk away with access to acres of natural green space. Maryland enjoys a diverse mix of restaurants and cafés.

Tenure: Leasehold
Council Tax Band: Not yet set

Information contained within this listing is for guidance only and should be checked and confirmed (prior to proceeding).

in partnership with Dexters

39 Westferry Road,
Canary Wharf, E14 8JH

Call us 7 days a week 8am-8pm

Quick Search

Top