Old Bridge StreetHampton Wick, KT1

£475,000

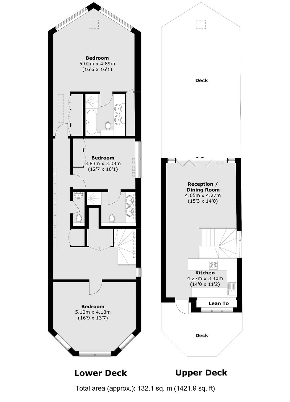
  • 3 Bedrooms
  • 2 Bathrooms
  • 1 Reception

Panther Quay is an exclusive, private mooring in a beautiful and convenient location on the River Thames.

Panther Quay is just 0.3 miles from Kingston's thriving town centre with its shops, riverside cafes, bars and restaurants.

Tenure: Freehold Lease Years Remaining: 88
Service Charge: £1,319 (Yearly)
Annual Ground Rent: £0
Council Tax Band: D

Information contained within this listing is for guidance only and should be checked and confirmed (prior to proceeding).

in partnership with Dexters

61 High Street,
Teddington, TW11 8HA

Call us 7 days a week 8am-8pm

Quick Search

Top