Juniper DriveBattersea, SW18

£1,961 Pw / £8,498 Pcm (Tenant Info)

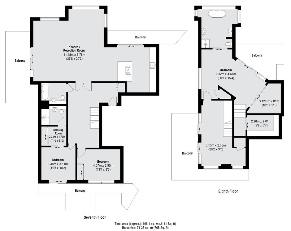
  • 3 Bedrooms
  • 3 Bathrooms
  • 1 Reception

This stunning penthouse apartment is arranged over the top two floors of Trafalgar House and offers impressive open plan entertaining space. The penthouse comes with two parking spaces in the development's secure underground car park.

Battersea Reach is located within a short stroll of Wandsworth Town mainline station and is within close proximity of Fulham, Chelsea and the Kings Road.

Security Deposit: £11,766
Council Tax Band: G

Information contained within this listing is for guidance only and should be checked and confirmed (prior to proceeding).

Waterview Thames Ditton Marina
in partnership with Dexters

Portsmouth Road,
Thames Ditton, KT6 5QD

Call us 7 days a week 8am-8pm

Quick Search

Top