Brunel RoadRotherhithe, SE16

£2,301 Pw / £10,000 Pcm (Tenant Info)

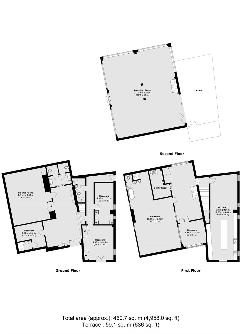
  • 5 Bedrooms
  • 3 Bathrooms
  • 1 Reception

Arranged over 5,000 sq ft, this breathtakingly state of the art five bedroom home has been fully refurbished while retaining its industrial heritage with a cinema room, large private roof garden and off street parking.

Brunel Road is located only a few metres from Rotherhithe Station and 0.2 miles from Canada Water station. A wide range of shops, pubs, restaurants and delis are close by.

Security Deposit: £13,846
Council Tax Band: C

Information contained within this listing is for guidance only and should be checked and confirmed (prior to proceeding).

Waterview Thames Ditton Marina
in partnership with Dexters

Portsmouth Road,
Thames Ditton, KT6 5QD

Call us 7 days a week 8am-8pm

Quick Search

Top