Lancaster StreetSouthwark, SE1

£585,000

  • 1 Bedroom
  • 1 Bathroom
  • 1 Reception

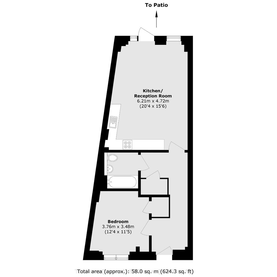
A beautifully finished ground-floor apartment spanning over 600 sq ft, featuring a bright open-plan living area with a sleek contemporary kitchen opening onto a west-facing private garden. Includes a large double bedroom, modern bathroom, and separate utility cupboard. Offered chain free.

Lumiere Court enjoys a prime position on Lancaster Street, set quietly just off Blackfriars Road. The area offers an exceptional mix of food markets, transport connections, and cultural attractions, with Waterloo, Southwark, and London Bridge stations all within easy reach. This vibrant pocket of London is a true hub for dining, entertainment, and the arts.

Tenure: Leasehold Lease Years Remaining: 989
Service Charge: £1,756
Annual Ground Rent: £0
Council Tax Band: D

Information contained within this listing is for guidance only and should be checked and confirmed (prior to proceeding).

in partnership with Dexters

54 Borough High Street,
London Bridge, SE1 1XL

Call us 7 days a week 8am-8pm

Quick Search

Top