Wey MeadowsWeybridge, KT13

£599,950

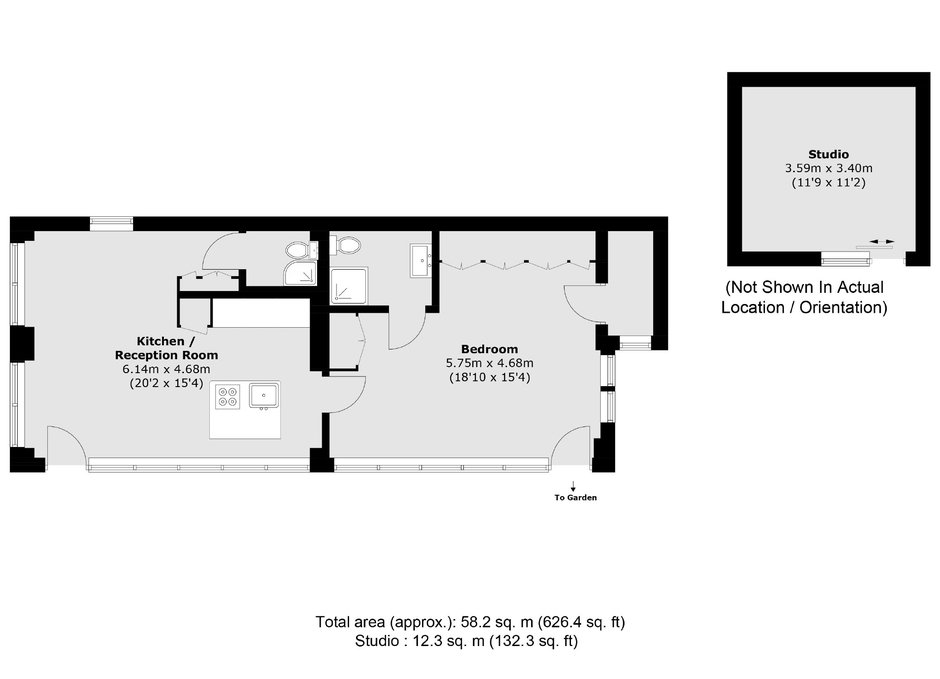
  • 1 Bedroom
  • 2 Bathrooms
  • 1 Reception

A unique, stylish modern riverside home on a large plot with gardens running down to The River Wey with a separate annexe/studio office.

Wey Meadows is a secluded private road located within a short walk of Weybridge town centre and station with 25 minute connections to London.

Tenure: Freehold
Council Tax Band: C

Information contained within this listing is for guidance only and should be checked and confirmed (prior to proceeding).

Waterview Thames Ditton Marina
in partnership with Dexters

Portsmouth Road,
Thames Ditton, KT6 5QD

Call us 7 days a week 8am-8pm

Quick Search

Top