Hackney RoadShoreditch, E2

£736 Pw / £3,200 Pcm Let (Tenant Info)

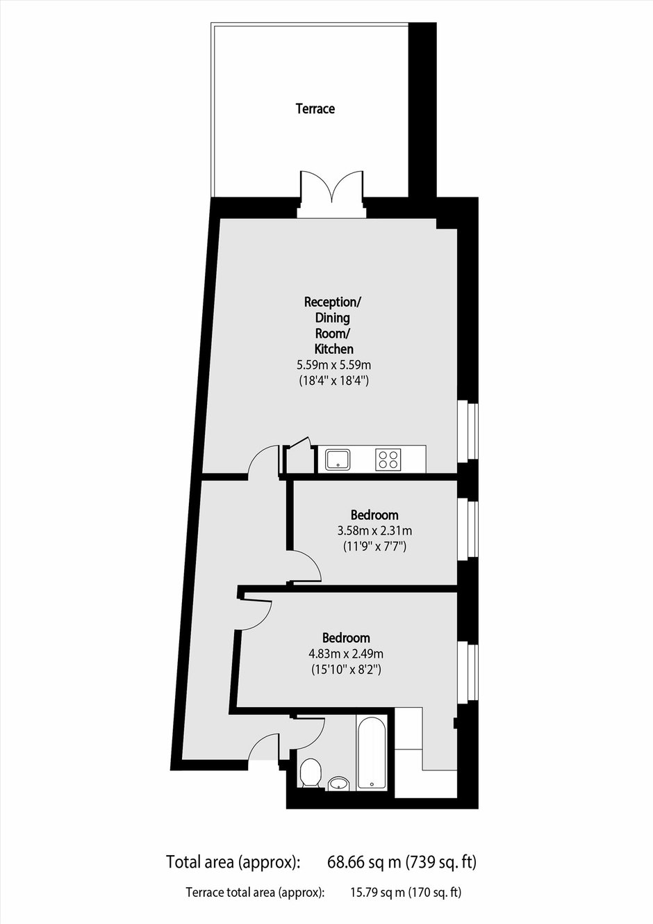
  • 2 Bedrooms
  • 1 Bathroom
  • 1 Reception

A great two double bedroom, one bathroom apartment based in Hoxton. This property has a private terrace and a reception room leading through to an open-plan kitchen, two double bedrooms, one with a walk in wardrobe and a family bathroom. The apartment is in prime location with Old Street station and the City within close proximity. Also, all the trendy bars, restaurants and shops in Spitalfields and Shoreditch are within minutes' walk from the apartment.

Located on Hackney Road, The property is in close proximity to Shoreditch High Street, Columbia Road and the open green spaces of Haggerston and Victoria Park. Liverpool Street (Elizabeth, Central, Circle, Hammersmith and City and Metropolitan Lines, national rail lines including the Stansted Express) and Old Street stations (Northern Line) with good tube and rail links nearby.

Security Deposit: £3,692
Council Tax Band: C

Information contained within this listing is for guidance only and should be checked and confirmed (prior to proceeding).

Waterview Thames Ditton Marina
in partnership with Dexters

Portsmouth Road,
Thames Ditton, KT6 5QD

Call us 7 days a week 8am-8pm

Quick Search

Top