Kingsland RoadHaggerston, E2

£738 Pw / £3,198 Pcm (Tenant Info)

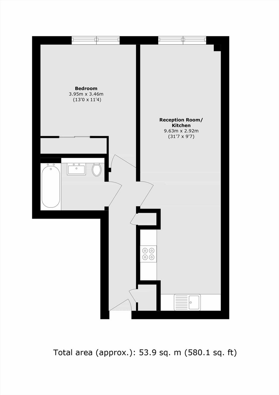
  • 1 Bedroom
  • 1 Bathroom
  • 1 Reception

SHORT LET - ALL BILLS INCLUDED - A modern, one bedroom apartment with bright, modern interiors set within a sought after location. The property has a large, open plan living room with space to dine and a renovated fully integrated kitchen. The double bedroom has a large built in wardrobe, the family bathroom is done to a high standard and the entrance hallway has a wide storage cupboard. The apartment is presented with modern interiors throughout and has an abundance of natural light from the large windows in the living room and bedroom.

This development is located next to Regents Canal and is perfectly situated for the bars, restaurants and amenities of Dalston, Broadway Market and Shoreditch.The green spaces of Shoreditch Park and London Fields are both nearby. Transport links include Haggerston station (Windrush line) which provides quick and easy access to the West End, Canary Wharf and the City.

Security Deposit: £3,690
Council Tax Band: C

Information contained within this listing is for guidance only and should be checked and confirmed (prior to proceeding).

Waterview Thames Ditton Marina
in partnership with Dexters

Portsmouth Road,
Thames Ditton, KT6 5QD

Call us 7 days a week 8am-8pm

Quick Search

Top