Peary PlaceBethnal Green, E2

£2,000,000

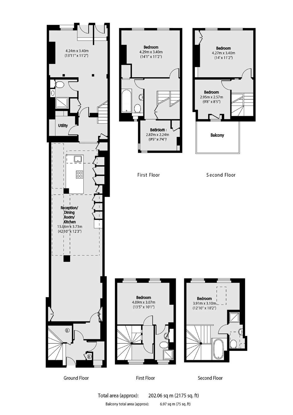
  • 6 Bedrooms
  • 4 Bathrooms
  • 1 Reception

A five/six bedroom property, formally a Granary and Linen shop brought together by Guard Tillman Pollock Architects. Measuring over 2,170 sqft this home is modern with stand out features including polished concrete floors, Bulthaup designer kitchen and maintains many of its' original features.

Peary Place is a cobbled cul de sac located off Roman Road in the Globe Town conservation area. Bethnal Green station on the Central Line is a quarter of mile walk with Victoria Park Square 300 yards in the same direction.

Tenure: Freehold
Council Tax Band: F

Information contained within this listing is for guidance only and should be checked and confirmed (prior to proceeding).

Waterview Thames Ditton Marina
in partnership with Dexters

Portsmouth Road,
Thames Ditton, KT6 5QD

Call us 7 days a week 8am-8pm

Quick Search

Top