Woodseer StreetBrick Lane, E1

£1,900,000

  • 7 Bedrooms
  • 3 Bathrooms
  • 1 Reception

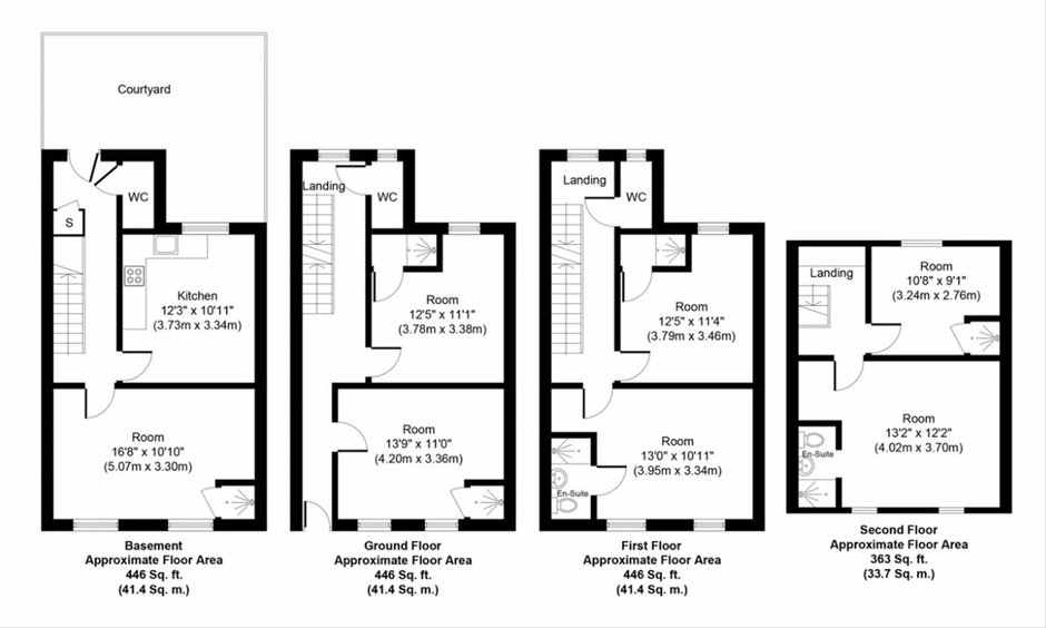
6/7 Bedroom freehold house just off of Brick Lane. The property has a spacious living room and separate kitchen on the lower ground level, this level also gives access to the properties private courtyard. The property then has 6 double bedrooms arranged over the three upper floors, two of the master rooms have full en-suites whilst every room has a shower and there are three WC's, one on each floor. This is a great residential prospect if reconfigured or a good investment opportunity as the house has a HMO license.

Woodseer Street, just off Brick Lane, the flat offers a peaceful setting amidst Shoreditch's vibrant lifestyle. You're only moments from an eclectic mix of cafés, vintage shops, markets, and galleries. Shoreditch High Street Overground and Liverpool Street Station are both within easy reach, offering excellent connectivity across London. The green space, Weavers Fields Gardens, is also close by.

Tenure: Freehold
Council Tax Band: F

Information contained within this listing is for guidance only and should be checked and confirmed (prior to proceeding).

Waterview Thames Ditton Marina
in partnership with Dexters

Portsmouth Road,
Thames Ditton, KT6 5QD

Call us 7 days a week 8am-8pm

Quick Search

Top